新築一戸建住宅
「利回り」は、当該不動産の1年間の予定賃料収入の不動産取得対価に対する割合であり、公租公課その他当該物件を維持するために必要な費用の控除前のものです。
また、予定賃料収入が確実に得られる事を保証するものではありません。

「柏市つくしが丘1期2号棟」:柏市エリアの新居にピッタリ。新築戸建てで新生活を始めてはいかがでしょうか。住み心地の良いこの物件は、価格も4,399万円と納得です。フラット35Sに対応しているため税制面でもメリットが多いです。柏市での新生活を当社がサポート致します。不動産の購入についてお困りの点などございましたら、ぜひご連絡くださいませ。

※地図上の物件位置は近隣に物件が所在することを表すものであり、実際の物件所在地とは異なる場合がございます。
04-7192-7811
営業時間:9:00~18:00 / 定休日:水・土曜日
| 所在地 | 千葉県柏市つくしが丘5丁目 | ||
|---|---|---|---|
| 交通 |
東武野田線 「新柏」駅
徒歩13分 常磐緩行線 「南柏」駅 バス10分 火の見下下車 徒歩7分 |
||
| 価格 | 3,699万円 | ||
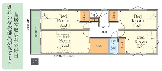
| 間取り |
4LDK
|
||
| 築年月(築年数) | 2024年 12月(新築) | 主要採光面 | 南西 |
| 建物構造 | 木造 | 階数 | 2階建 |
| 私道負担面積 | セットバック | ||
| 接道状況 | 一方 (南西側 公道6.0m) | ||
| 建ぺい率/容積率 | 50%/ 100% | 土地権利 | 所有権 |
| 地目 | 宅地 | 地勢 | |
| 土地の権利形態 | |||
| 都市計画 | 市街化区域 | 用途地域 | 第一種低層住居専用地域 |
| その他法令上の制限 | 宅地造成及び特定盛土等規制法/高さ最高限度有/法第22条区域・下水道処理区域 | ||
| 国土法届出 | 不要 | 取引態様 | 仲介 |
| 現況 | 完成済み | 引渡し | 即時 |
| 駐車場 | 空き台数:2台 、 有 | ||
| 設備条件 | 公共下水 / 公営水道 / 閑静な住宅地 / 都市ガス / 室内洗濯機置場 / バルコニー / 24時間換気システム / 食器洗い乾燥機 / 浴室乾燥機 / 温水洗浄便座 / トイレ2ヶ所 / 浴室1坪以上 / 床下収納 / ウォークインクロゼット / TVモニタ付インターホン | ||
| その他条件 | |||
| 備考 | ぜひ一度見ていただきたい、「柏市つくしが丘1期2号棟」です。4,399万円台の、ニーズの高い物件はこちらです。こちらは南西向きの物件です。浄水器があるので、小さいお子さんがいる方にも衛生上安全でおすすめです。当社スタッフと一緒に、お客様の新生活に相応しいマイホームを探しましょう。住まい探しを全力でサポート致しますので、まずはお気軽にご連絡ください。 | ||
| 周辺の学校 | 中原小学校(約800m / 徒歩10分)、光ケ丘中学校(約450m / 徒歩6分) | ||
| 建築確認番号 | 第24UDI1W建01382号 | 物件番号 | 89609595 |
| 情報公開日 | 2025年11月7日 | 次回更新予定日 | 2025年11月21日 |
| 取引条件の有効期限 | 2025年11月21日 | ||
| 取扱い会社 |
ブルーステラホームズ 株式会社 〒277-0033 千葉県柏市増尾1丁目5-2 千葉県知事(1)第18626号 千葉県宅地建物取引業協会 |
||
04-7192-7811
営業時間:9:00~18:00 / 定休日:水・土曜日
| 所在地 | 物件の住所を表示。(詳細住所は表示していない場合もある) | ||
|---|---|---|---|
| 交通 | 物件(部屋)の沿線駅・バス停を表示。(複数駅・バス停の利用が可能な場合は最大3件まで) | ||
| 間取り/詳細 | 数字は居室数を表示。LDKはそれぞれ「リビング」「ダイニング」「キッチン」、S(納戸)とは「納戸」「サービスルーム」「マルチルーム」「フリールーム」など建築基準法第28条に適合していないため、居室と認められない納戸その他の部分を表す。 | ||
| 価格 | 販売されている住戸の価格を表示。仲介手数料は含まない。 | ||
| 管理費 | 共同住宅の設備その他共用部分の維持および管理をするために必要な費用を表示。 | ||
| 修繕積立金 | 共用部分の修繕のために積立てる金額を表示。 | ||

新築一戸建住宅
| 価格 | 3,799 万円 | ||
|---|---|---|---|
| 間取り | 4LDK | 築年月(築年数) | 2024年 12月 (築1年未満) |
| 建物面積 | 108.68㎡ | 土地面積 | 123.91㎡ |
| 住所 | 千葉県柏市つくしが丘5丁目 | ||
| 交通 |
東武野田線「新柏」駅 徒歩13分 常磐緩行線「南柏」駅
|
||
【完成予想図】外観の完成予想図です